For Sale, Off the market Contact Agent - House
Tarneit
Creekstone Estate, Tarneit VIC 3029
Prestigious Creekstone Estate: Your Turnkey Modern Family Living
Tarneit – Creekstone estate is a beautifully designed master planned community. With an excellent train and freeway network, you’re never far from local activity centres, retail precinct, and established parks/reserves.
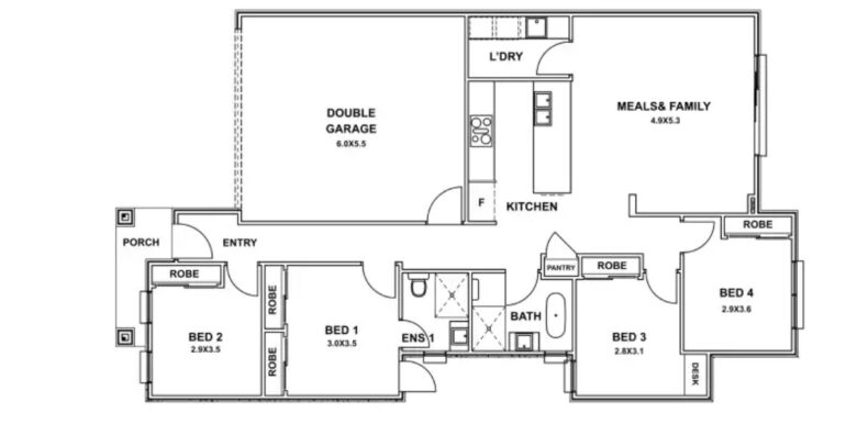
Discover an exclusive collection of house and land packages in Tarneit’s prestigious Creekstone Estate. These 4-bedroom, 2-garage residences are offered as complete turn-key solutions, presenting a perfect opportunity for families and astute investors. Each home boasts premium inclusions like 2.7m high ceilings, 40mm stone benchtops, and comprehensive landscaping. Secure your place in a thriving community, conveniently located near premier schools, parks, and transport links.
Property Features:
– Grand 2.7-metre high ceilings creating an atmosphere of space.
– Gourmet kitchen with 40mm stone benchtops and waterfall edges.
– Premium 900mm stainless steel appliances and dishwasher.
– Luxurious bathrooms adorned with floor-to-ceiling tiles.
– Refrigerated cooling and reverse heating for year-round comfort.
– Secure double garage with remote access.
– Low-maintenance yard with artificial turf and perimeter concreting.
– Striking modern façade with exposed aggregate concrete and a timber front door.
Amenities Highlights:
[Park] Sprout Drive Park – 700m (10 min walk)
[Transport] Tarneit Train Station – 1.6km (2 min drive)
[Shopping] Tarneit Central Shopping Centre – 1.9km (3 min drive)
[Shopping] Truganina Central Shopping Centre – 3.1km (6 min drive)
[Shopping] Tarneit Gardens Shopping Centre – 3.9km (6 min drive)
[Private School] Westbourne Grammar School – 6.6km (11 min drive)
[Community] Bembit Bagrook Community Centre – 1.8km (4 min drive)
[CBD Access] Melbourne CBD via M1 – 27km (35 min drive)
Zone School:
Nearnung Primary School – 1.3km, 3 min drive
Bemin Secondary College – 2.2km 3 min drive
Contact:
Andy Pham 0413 146 145
Kevin Nguyen 0431 240 616

